Pro-E Design

 

 

 

 

Pro-E Design

Sample Plans - Chesterfield


Front Elevation

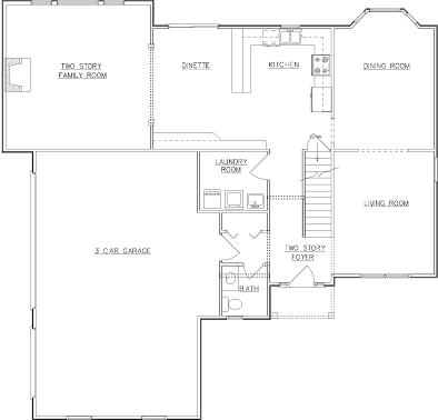
Total Square Footage = 2552 sq. ft.

First Floor - 1294 sq. ft., Second Floor - 1258 sq. ft.

First Floor - click to enlarge

 


Second Floor - click to enlarge


© Copyright 2005 Pro-E Design, LLC. all rights reserved.
1261 Meadow Woods Drive
Macedonia, Ohio 44056
Ph:  (330) 467-5877
Fax: (330) 908-0585
Email: brian@proedesignohio.com